14 Easterly Place
Palm Coast, FL 32164

Listed at $460,000

Details

  • MLS# 1222418
  • Residential - Single Family
  • Status Active
  • 3 Bedrooms
  • 2 full 1 partial Bathrooms
  • 2,396 Square Feet
  • 0.230 acres
  • Built in 2006
  • Local Schools

Description

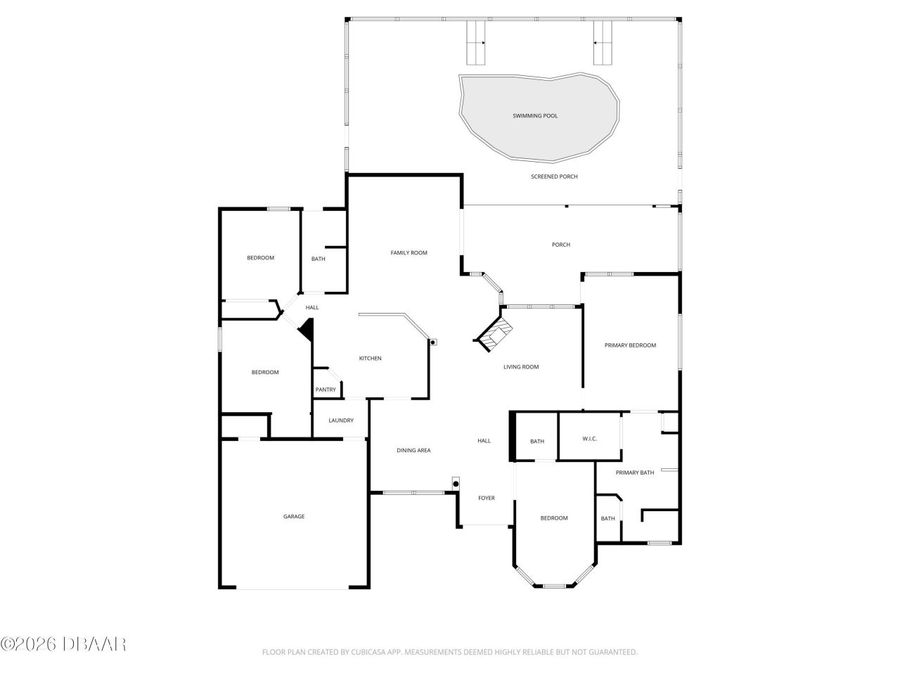
Short Sale. Welcome to 14 Easterly Place in the Cypress Knoll community of Palm Coast. This spacious pool home offers three bedrooms plus a bonus room with its own half bath. The bonus room can function as an office, den, study, or can be easily converted into an additional bedroom. The home also includes a formal living room with a fireplace, a formal dining room, and a large great room that opens directly to the kitchen and provides views of the pool. The kitchen is centrally located and offers generous cabinet storage and counter space while overlooking the great room and the outdoor living area. The primary suite features direct pool...read more access, ample closet space, and a well sized bathroom with separate vanities. The split floor plan offers privacy with secondary bedrooms located on the opposite side of the home. Outdoor features include a screened pool and spa, a covered lanai, and a private backyard setting. Recent updates include a salt water pool system, a whole house water softener, a roof replacement in 2023, a new AC installed in 2022, a new hot water tank installed in August 2025, a new pool pump installed in September 2025, a circular driveway coated in 2024, and a sprinkler system on a well. Additional interior features include crown molding, tray ceilings, and an alarm system. Buyers should verify all updates directly. Cypress Knoll is located in the Cypress Knoll of Palm Coast and is known for its quiet streets and nearby Cypress Knoll Golf Club. Residents enjoy quick access to shopping, dining, recreational parks, schools, and miles of walking and biking trails. Flagler Beach is a short drive away. This property offers space, versatility, and a desirable Palm Coast location.

Features

  • Washer
  • Refrigerator
  • Microwave
  • Electric Range
  • Dryer
  • Dishwasher
  • Central Air
  • Tile
  • Wood
  • Central
  • 1.0 Story
  • $6,379 Taxes
  • Public
  • Built in 2006
View All Features

Contact the Agent

Contact the Listing Agent
Disclaimer: All information deemed reliable but not guaranteed. All properties are subject to prior sale, change or withdrawal. Neither listing broker(s) or information provider(s) shall be responsible for any typographical errors, misinformation, misprints and shall be held totally harmless. Listing(s) information is provided for consumers personal, non-commercial use and may not be used for any purpose other than to identify prospective properties consumers may be interested in purchasing. Information on this site was last updated 04/26/2026. The listing information on this page last changed on 04/26/2026. The data relating to real estate for sale on this website comes in part from the Internet Data Exchange program of Delta Media Group MLS (last updated Sun 04/26/2026 12:05:23 AM EST) or Miami MLS (last updated Sat 04/25/2026 11:58:32 PM EST) or Stellar MLS (last updated Sat 04/25/2026 11:58:57 PM EST) or Daytona MLS (last updated Sat 04/25/2026 11:36:47 PM EST) or Tallahassee MLS (last updated Sat 04/25/2026 10:48:38 PM EST) or Northeast Florida MLS (last updated Sat 04/25/2026 11:58:52 PM EST) or My State MLS (last updated Sat 04/25/2026 11:30:11 PM EST) or Florida Keys MLS (last updated Sat 04/25/2026 8:29:43 PM EST). Real estate listings held by brokerage firms other than Adams Cameron & Co. REALTORS may be marked with the Internet Data Exchange logo and detailed information about those properties will include the name of the listing broker(s) when required by the MLS. All rights reserved.
Privacy Policy / DMCA Notice / ADA Accessibility

Property Image 1
Property Image 2
Property Image 3
Property Image 4
Property Image 5
Property Image 6
Property Image 7
Property Image 8
Property Image 9
Property Image 10
Property Image 11
Property Image 12
Property Image 13
Property Image 14
Property Image 15
Property Image 16
Property Image 17
Property Image 18
Property Image 19
Property Image 20
Property Image 21
Property Image 22
Property Image 23
Property Image 24
Property Image 25
Property Image 26
Property Image 27
Property Image 28
Property Image 29
Property Image 30
Property Image 31
Property Image 32
Property Image 33
Property Image 34
Property Image 35
Property Image 36
Property Image 37
Property Image 38
Property Image 39
Property Image 40
Property Image 41
Property Image 42
Property Image 43
Property Image 44
Property Image 45
Property Image 46
Property Image 47
Property Image 48
Property Image 49
Property Image 50
Property Image 51
Property Image 52
Property Image 53
Property Image 54
Property Image 55
Property Image 56
Property Image 57
Property Image 58
Property Image 59
Property Image 60
Property Image 61
Property Image 62
Property Image 63
Property Image 64
Property Image 65

All Property Features

  • Property Type: Residential - Single Family
  • Appliances: Washer, Refrigerator, Microwave, Electric Range, Dryer, Dishwasher
  • Cooling: Central Air
  • Days on Site: 84
  • Directions: From I-95 head West on state route 100. Turn right on Belle Terre, turn left onto Eastwood Dr and then left onto Easterly Place. Home will be on the right.
  • Exterior: Block, Stucco
  • Fireplace: Electric
  • Flooring: Tile, Wood
  • Garage: 2
  • Heating: Central
  • Interior Amenities: Breakfast Nook, Built-in Features, Eat-in Kitchen, Open Floorplan, Split Bedrooms, Vaulted Ceiling(s)
  • Laundry: In Unit
  • Listing Terms: Cash, Conventional, FHA, VA Loan
  • Lot Size: 0.23 Acres
  • Parcel #: 07-11-31-7034-00410-0210
  • Parking: Garage
  • Patio/Porch: Covered, Front Porch, Patio, Screened
  • Pool: In Ground, Salt Water, Screen Enclosure, Waterfall
  • Property Attached Y/N: No
  • Property Sub-Type: Single Family Residence
  • Road Surface: Paved
  • Roof Type: Shingle
  • Sewer: Septic Tank
  • Spa Features: In Ground
  • SQFT Total: 3444
  • Stories: 1.0
  • Swimming Pool: Yes
  • Taxes: $6,379
  • Utilities: Cable Connected, Electricity Connected, Sewer Connected
  • Water: Public
  • Year Built: 2006